
एचडी टाइप यूरोपीय उत्थान इलेक्ट्रिक एकल-गर्डर ओवरहेड क्रेन
यूरोपीय सिंगल गिरडर ओवरहेड क्रेन फेम और डीआईएन मानक के साथ सख्ती से डिजाइन और निर्माण कॉम्पैक्ट उठाने वाली मशीनरी है, जो उन्नत प्रौद्योगिकी और सुंदर डिजाइन के साथ है। सामान्य प्रकार और निलंबन प्रकार में विभाजित, यूरोपीय मानक इलेक्ट्रिक उछाल के उपयोग का समर्थन, कार्यशाला और गोदाम सामग्री हैंडलिंग के लिए उपयुक्त, बड़े हिस्सों परिशुद्धता असेंबली और अन्य स्थानों।
एचडी टाइप यूरोपीय उत्थान इलेक्ट्रिक एकल-गर्डर ओवरहेड क्रेन
संक्षिप्त विवरण:
यूरोपीय सिंगल गिरडर ओवरहेड क्रेन फेम और डीआईएन मानक के साथ सख्ती से डिजाइन और निर्माण कॉम्पैक्ट उठाने वाली मशीनरी है, जो उन्नत प्रौद्योगिकी और सुंदर डिजाइन के साथ है। सामान्य प्रकार और निलंबन प्रकार में विभाजित, यूरोपीय मानक इलेक्ट्रिक उछाल के उपयोग का समर्थन, कार्यशाला और गोदाम सामग्री हैंडलिंग के लिए उपयुक्त, बड़े हिस्सों परिशुद्धता असेंबली और अन्य स्थानों।
यह मशीनरी निर्माण, धातु विज्ञान, पेट्रोलियम, पेट्रीफैक्शन, बंदरगाह, रेलवे, नागरिक विमानन, भोजन, कागज बनाने, निर्माण, इलेक्ट्रॉनिक्स उद्योग कार्यशाला, गोदाम और अन्य सामग्री हैंडलिंग स्थितियों, esp में व्यापक रूप से उपयोग किया जा सकता है। भौतिक हैंडलिंग पर लागू होता है जिसके लिए सटीक स्थिति की आवश्यकता होती है, बड़े घटकों की सटीक असेंबली स्थिति होती है।
विस्तृत छवियां:
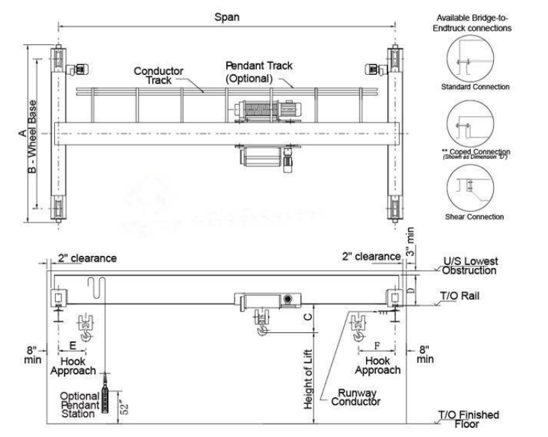
स्केच ड्राइंग:
तकनीकी पैमाने:
स्पैन | मीटर | 7.5 | 10.5 | 13.5 | 16.5 | 19.5 | 22.5 | 25.5 |
क्षमता | टी | 1 ~ 12.5t | ||||||
कुल वजन | किलोग्राम | 1781 ~ 12086 | ||||||
ट्रॉली वजन | किलोग्राम | 405 ~ 740 | ||||||
मैक्स। व्हील लोड | के.एन. | 13.5 ~ 90.94 | ||||||
यात्रा रेल | P24 ~ P43 | |||||||
उठाने की गति | मीटर / मिनट | 0.8 / 5 | 0.8 / 5 | 0.8 / 5 | 0.8 / 5 | 0.8 / 5 | 0.8 / 5 | 0.8 / 5 |
सामान उठाने की ऊंचाई | मीटर | ≥ 6 | ≥ 6 | ≥ 6 | ≥ 6 | ≥ 6 | ≥ 6 | ≥ 6 |
कुल मोटर शक्ति | kw | 4.31 | 4.31 | 4.31 | 4.31 | 4.67 | 4.67 | 4.67 |
क्रेन की गति | मीटर / मिनट | 3-30 | 3-30 | 3-30 | 3-30 | 3-30 | 3-30 | 3-30 |
ट्रॉली गति | मीटर / मिनट | 2-20 | 2-20 | 2-20 | 2-20 | 2-20 | 2-20 | 2-20 |
कार्य कर्तव्य | M5 / ए 5 |